Search

















Scroll Down
Book Viewing
This property is currently Sold STC, please provide your details below and we will contact you to discuss your requirements.
Council Tax Band B
Share of Freehold
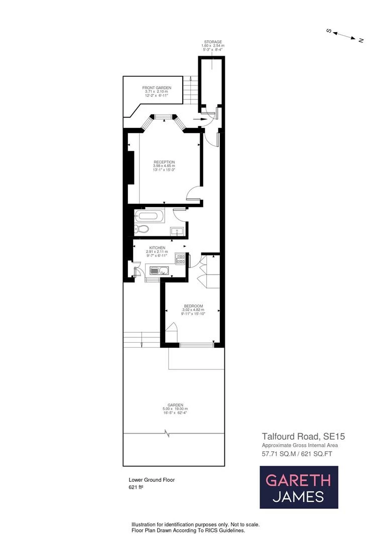
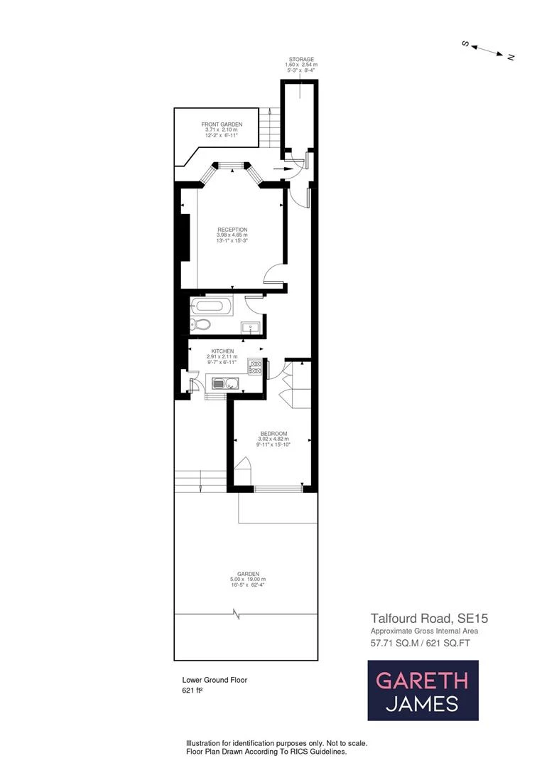
A simply enormous private garden accompanies this impressively spacious one-bedroom garden flat, set within a handsome Victorian conversion on one of Peckham Rye’s premier streets—Talfourd Road—just moments from Bellenden Road and Peckham Rye Station (Zone 2, London Overground).
CHAIN FREE
Talfourd Road is a long, tree-lined street celebrated for its elegant period architecture. This charming home occupies the lower ground floor of a grand townhouse and enjoys its own private entrance, a tasteful neutral décor, period features, and stylish modern touches throughout.
At the front of the property, a secure and private storage vault—tucked beneath your neighbours’ stairs—offers an ideal spot for bikes or outdoor gear. Opposite this is your private front door, opening into a welcoming hallway. The spacious reception room sits to your right and benefits from a large bay window with original, stripped wooden shutters, flooding the space with natural light. Recessed lighting, bespoke built-in shelving and cabinetry, and solid oak flooring all contribute to the refined yet characterful feel.
The bathroom is smart and contemporary, featuring a classic white suite, metro-style tiling, and an over-bath shower. The adjoining kitchen is in excellent condition, with sleek white wall and base units, and a beautiful stripped wood alcove cupboard adding charm and warmth.
To the rear, the generously sized double bedroom enjoys tranquil views over the garden. It includes ample built-in storage, removing the need for additional furniture.
Step outside to discover the showstopper: a long, beautifully landscaped private garden with lush, exotic planting and a designated al fresco dining and BBQ area. The space is ideal for entertaining or unwinding, and there’s also plenty of room to add a summer house or garden studio, offering exciting potential for a future project.
Share of freehold
Service charge - N/A
Council tax band - B

















Below is a breakdown of how the total amount of SDLT was calculated
IMPORTANT NOTICE
Descriptions of the property are subjective and are used in good faith as an opinion and NOT as a statement of fact. Please make further specific enquires to ensure that our descriptions are likely to match any expectations you may have of the property. We have not tested any services, systems or appliances at this property. We strongly recommend that all the information we provide be verified by you on inspection, and by your Surveyor and Conveyancer.