Search





























Scroll Down
Council Tax Band C
Share of Freehold
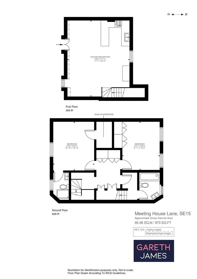
Occupying the upper two floors of an elegant Victorian conversion, this exceptional 972 sq ft residence has been meticulously renovated to an outstanding standard, offering a seamless blend of period charm and contemporary sophistication.
A beautifully presented approach sets the tone, with a manicured front garden and tiled pathway leading to a striking matte black entrance door. The upper level unfolds into a breathtaking loft-style living space, where Velux windows and a Juliet balcony create a dramatic interplay of natural light, enhancing the sense of volume and airiness. The open-plan layout is perfectly designed for both entertaining and everyday living, with generous zones for dining and relaxation. A bespoke U-shaped kitchen sits elegantly to one side, appointed with integrated appliances, sleek high-gloss cabinetry, and a timeless subway-tiled splashback. Underfoot, engineered wood flooring flows effortlessly throughout, adding warmth and cohesion.
The lower level hosts two beautifully proportioned double bedrooms. The principal suite is a true sanctuary, complete with a walk-in dressing area and a luxurious en-suite bathroom. Here, a walk-in waterfall shower is framed by Crittall-style glass, complemented by crisp white tiling, striking black fixtures, and a terrazzo-inspired vanity detail that echoes the flooring. The second bedroom is equally impressive, featuring floor-to-ceiling bespoke wardrobes providing abundant storage.
The main bathroom continues the home’s refined aesthetic, offering a full-sized bath within a sleek, contemporary setting. Throughout the property, carefully curated details elevate the finish—from the subtle black accents on ironmongery and window frames to the newly installed sash-style double-glazed windows, which honour the building’s heritage while delivering modern performance.
There is an abundance of storage throughout and is offered with a share of the freehold.
The nearby area has rapidly evolved into a local hotspot for both residents and visitors alike, establishing itself as a go-to hub in South East London.
Nestled in the sought-after SE15 postcode, this property is ideally positioned just off the vibrant Queens Road. The area has undergone a significant transformation in recent years, now brimming with independent cafes, boutique shops, supermarkets, and exceptional dining options. For a relaxed vibe, Beer Rebellion and Peckham Cellars offer cosy retreats, while The Prince of Peckham and the vegan haven Naifs add to the area's eclectic charm.
For daily essentials, Tesco and Sainsbury's are conveniently nearby, while Peckham Library, Peckham Pulse Leisure Centre, Peckhamplex Cinema, and the diverse shops along Rye Lane offer further enrichment to your lifestyle. Just a short stroll away, Nunhead Village boasts a delightful array of independent eateries, pubs, and cafes, including Ayre's bakery, Soper's fishmongers, The Old Nun's Head gastropub, and Good Cup coffee shop, all nestled around The Green, providing a quaint village atmosphere.
Peckham has long drawn new residents for its abundance of green space giving the sense of being far from London yet in such a central location. Peckham Rye Park is close by, one of London's loveliest green spaces and a refuge from the urban sprawl of the city – with its formal gardens, café, pond, and open spaces or head to historic Telegraph Hill with its two parks plus tennis courts and far reaching views over London. Here you will also find the popular community run café and arts hub Hill Station on Kitto Road.
For effortless commuting, Queens Road and Peckham Rye stations are within easy reach, offering direct connections to London Bridge, Shoreditch, Clapham, and Canary Wharf via Canada Water.
Share of freehold - 992 Years
Council tax band - C





























Below is a breakdown of how the total amount of SDLT was calculated
IMPORTANT NOTICE
Descriptions of the property are subjective and are used in good faith as an opinion and NOT as a statement of fact. Please make further specific enquires to ensure that our descriptions are likely to match any expectations you may have of the property. We have not tested any services, systems or appliances at this property. We strongly recommend that all the information we provide be verified by you on inspection, and by your Surveyor and Conveyancer.